Sobha One World floor plans include well-designed 1, 2, 3 and 4 BHK apartments ranging 650 to 2495 sq. ft. Set within a 300-acre integrated township with 18 high-rise towers (3B+G+54) housing approximately 5400 apartments, these modern layouts offer clear 1 Bed 1T, 2 Bed 2T, 3 Bed 3T and 4 Bed 4T options with functional kitchen–utility areas and meticulously planned room arrangements, ensuring optimal natural light, privacy and efficient podium-level amenity space above dedicated parking. The units have proper ventilation and a privacy-focused design with over 65% open space and a massive 75,000 sq. ft. clubhouse.
Every unit is engineered with a "Zero Dead Space" philosophy, maintaining an industry-leading loading factor where approximately 70% to 75% of the Super Built-Up Area is dedicated to usable internal space.
Optimal Units for End-Use: The "Sky Mansion" Experience:
For families planning to move in by 2031, the higher-floor units (above the 30th floor) are considered the best units for end-use. These 'Sky Mansions' offer unobstructed 180-degree panoramic views of the Hoskote greenery and significantly reduced noise levels. Positioned in premium tower stacks rising to 54 floors, the 3 BHK Large (with maid's room) and 4 BHK units provide a 'villa-in-the-sky' experience with maximum frontage and superior cross-ventilation.
A floor plan is a clear diagram that shows the layout of a house when viewed from above. The Plan will include details of room sizes and the exact measurements of the usable space. Floor plans are usually created in 2D and 3D formats to give a clear visual glimpse of the future home. At Sobha One World, separate floor plan PDFs are prepared for every tower structure and unit type. So buyers can compare sizes, balcony layout, and internal circulation before they visit the site.
Sobha One world has floor plans that are ideal for couples and growing families who wish for extra space. Buyers can choose from ultra-luxury 1, 2, 3, and 4BHK flats that are Vaastu-compliant and feature spacious layouts with well-optimized storage areas. Most units are planned with logical furniture placement in mind, so the living, dining and bedroom spaces can take full-size beds, sofas and wardrobes without wasting corners or creating dead zones.
The project offers varying floor plans of different sizes. Within each BHK type, there are multiple variants with different balcony orientations, views towards internal gardens or external skyline views, and a choice of levels across 3B+G+54 floors for people who prefer lower, mid or higher floors.
Floor Size of Apartments – 650 to 2495 sq. ft.
Types of Floor Plans
Sobha One World Floor Plan includes the following 4 configurations mainly:
Sobha One world 1 BHK Apartments floor plan (650 to 777 sq. ft) – Compact yet intelligently planned layouts ideal for young professionals and savvy investors. These "Smart-Sized" homes feature a dedicated foyer for enhanced privacy, a seamless living-dining area, and a large master bedroom. The layout is optimized to provide a premium lifestyle within a smaller footprint, perfect for those working in the nearby Whitefield tech belt or seeking a high-yield rental asset.
Sobha One world 2 BHK Apartments floor plan (1150 to 1350 sq. ft) - Spacious layouts perfect for nuclear families with privacy. Some 2 BHK options come with a larger living and dining zone, while others prioritize bigger bedrooms and double balconies for extended sit-out space. This layout is ideal for young professionals working in the nearby Whitefield IT hub and Neo-Whitefield corridor.
Sobha One world 3 BHK Apartments floor plan (1445 to 1890 sq. ft) – Perfect for joint families with spacious rooms. Select 3 BHK layouts (Smart & Luxe variants) come with an extra balcony or wider utility area, which is useful for families who need more service space for washing and storage. These units feature palatial Master Suites and king-sized room dimensions, with the Luxe variant often featuring a dedicated foyer and three expansive balconies.
Sobha One world 4 BHK Apartments floor plan (1915 to 2495 sq. ft) – Premium housing units ideal for extended families. These units are placed in premium tower stacks to capture better skyline and garden views, with longer frontage and more separation between bedrooms and the living zone for privacy. Spanning up to 2495 sq. ft., these units include a dedicated servant’s room with an attached bathroom and massive 'sky-deck' balconies.
Sobha One World Floor Plan Summary Table:
| Configuration Type | Super Built Up Area Approx | Key Highlights |
| 1 BHK | 650 to 777 Sqft | Compact Luxury |
| 2 BHK | 1150 to 1350 sq ft | Dual Balconies, Small & Large variants |
| 3 BHK | 1445 to 1890 sq ft | Smart & Luxe Variants, Wide Utility |
| 4 BHK | 1915 to 2495 sq ft | Sky-Deck Balconies, Servant Room |
Overview of the floor plan for the luxury units in the Sobha One World Model Apartments located at Hoskuru:
Model apartments in 1, 2, 3, and 4 BHK configurations will be available at the Hoskote project site by the May 2026 launch. This 'physical blueprint' allows buyers to imagine the zero dead space design, walk through the model flats, and check the quality of Sobha’s signature finish and premium finishes firsthand before possession. Guided site tours during the launch event will showcase the natural light and cross-ventilation designed into every high-rise tower reaching up to 54 floors.
1 BHK floor plan in Sobha One world
The 1 BHK floor plan provides a carefully planned area of 740 sq. ft. Perfect for young professionals and savvy investors, it is the ideal balance of efficiency and modern lifestyle. The layout of a 1-bedroom flat has:
- A kitchen with an attached utility
- A seamless living and dining area
- A Master bedroom
- A dedicated entry foyer
- 1 wide balcony
- 1 attached bathroom
In most 1 BHK stacks, the entry foyer ensures maximum privacy by blocking direct views into the living space from the main door. The living area opens out to a wide balcony designed to invite abundant natural light, while the 'Zero Dead Space' philosophy ensures that every square foot is utilized for functional living rather than empty corridors."
2 BHK floor plan in Sobha One world
The 2 BHK floor plan provides a carefully planned area from 1150 sq. ft. to 1350 sq. ft. Perfect for nuclear families, it is the ideal balance of comfort and stylishness. The layout of a 2-bedroom flat has:
- A kitchen with an attached utility
- A big living space
- A Master bedroom
- A guest bedroom
- 1 or 2 balconies
- 1 or 2 attached bathrooms.
In most 2 BHK stacks, the living room opens out to the main balcony facing internal gardens or amenities, while the bedrooms are grouped on one side to give a private sleeping zone away from the entrance.
3 BHK Floor Plan in Sobha One world
The 3 BHK floor plan offers spacious areas that balance comfort with luxury. Designed for growing families, these homes range in size from 1445 sq. ft. to 1890 sq. ft. The layout of a 3-bedroom flat has:
- 2 or 3 balconies
- 3 bedrooms
- 3 bathrooms
- A big living room
- A kitchen with an attached utility
In many 3 BHK layouts, one bedroom can be used as a guest room or home office, and corner units benefit from extra windows on two sides, improving cross-ventilation and natural light on every floor.
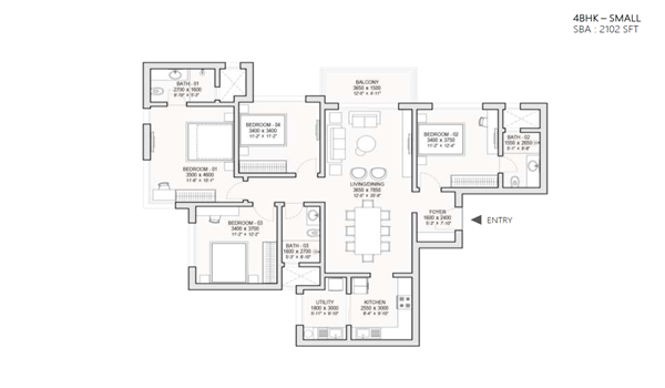
4 BHK Floor Plan in Sobha One world
The 4 BHK floor plan is the premium layout that is crafted for extended families seeking luxury with extra space. It includes a size range from 1915 sq. ft. to 2495 sq. ft. (expanding up to 2495 sq. ft. in premium stacks). The layout of a 4-bedroom flat has:
- 3 or 4 balconies
- 4 bedrooms
- A big living room
- A kitchen with an attached utility
- 4 bathrooms
Larger 4 BHK formats often place one bedroom slightly away from the others, which works well as a parents’ room or a quiet study, and the additional balconies give long, wide views over the central amenities and tower tops.
All the flats are based on Vaastu and functional planning. All housing units have zero dead space, which ensures maximum usable area in every housing unit with better privacy. All the flats in the tower are designed in a way to get better airflow and natural light. Stack planning ensures that plumbing shafts and service ducts are aligned vertically, which keeps the internal room shapes more regular and improves the net usable carpet area inside each unit.
No units in the tower face each other for improved privacy and security. The towers in the project are placed with adequate gaps to support natural airflow and daylight access between residences. Because of this spacing, even mid-level floors receive good daylight, and residents do not have another balcony directly opposite their own, which reduces noise and visual disturbance.
Tower Design:
Sobha One World floor plan comprises 18 high-rise residential towers, each with 3 basement levels, a ground floor, and 54 residential floors (3B+G+54) high and planned to capture skyline views. 3 parking levels (3P) support each high tower in the project, and they are fully dedicated to parking vehicles. The 300-acre master plan dedicates 65% of the land to lush green spaces and themed gardens. Lift cores and staircases are placed centrally so that even higher floors have short, efficient access from the lobby, and the typical floor plate repeats in a way that keeps maintenance simple for the association in the long term.
How differently are Sobha One world Floor Plans designed?
- 1, 2, 3 and 4 BHK layouts developed between 740 sq. ft to 2425 sq. ft.
- No housing units facing each other for good privacy
- Balconies facing green amenities for a serene look
- Floor plans are aligned to Vaastu
- Planning with zero dead corners (70% to 75% SBA efficiency)
- All units will get enough natural light and ventilation throughout the day
In addition, the mix of 1, 2, 3 and 4 BHK homes across towers is planned so that each floor has a balanced combination of compact and larger units, which helps manage the number of neighbours per corridor and reduces crowding near lifts and staircases.
Sobha one World Bangalore Floor Plan Reviews are added now so that new buyers can select their desired units based on the early buyers’ suggestions. The Sobha One World Floor Plan rating is 4.7/5, from early buyers and real estate experts. Most of these reviews highlight the practical room sizes, sensible placement of balconies, and the absence of odd-shaped rooms, which are common issues in many other high-rise projects.






